Котли Compact — це сучасні твердопаливні котли тривалого горіння, які ідеально підходять для опалення житлових будинків і комунальних приміщень. Потужність моделей варіюється в межах 15-25 кВт.
Конвекційна частина представлена сталевим теплообмінником, який поєднує компактність і продуктивність. Завдяки глибокій топковій камері, яка є найбільшою серед котлів цього класу, можна використовувати дрова великого розміру. Інноваційний комбінований теплообмінник полуно-сжартрубного типу неабияк підвищує ефективність роботи, сприяє збільшенню ККД і знижує витрати на опалення.
У конструкції передбачена чавунна колосникова решітка, яка дає змогу паливну повністю згоряти навіть за високих температур. Це забезпечує максимально ефективне використання палива без залишку у формі деревного вугілля.
Основні переваги котла Compact:
• Виготовлений із високоякісної сталі завтовшки 6 мм;
• Збільшена топічна камера, попри компактні розміри;
• До комплекту входять усі необхідні інструменти для догляду;
• Не вимагає багато місця для встановлення;
• Зручний і простий в обслуговуванні.
Такий підхід до конструкції котла гарантує його надійність, ефективність і зручність у використанні.


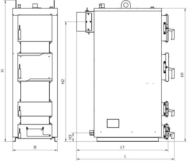
| Параметри | Од. вимірювання | Альтеп-комплект | ||
| Габаритні розміри | кВт | 16 | 20 | 25 |
| B | мм | 520 | 520 | 520 |
| H | мм | 900 | 990 | 1090 |
| H1 | мм | 850 | 945 | 1045 |
| H2 | мм | 719 | 783 | 883 |
| L | мм | 1010 | 1010 | 1010 |
| Розміри завантажувальних дверцят | Висота мм | 190 | 190 | 190 |
| Ширина мм | 360 | 360 | 360 | |
| Основні | |
|---|---|
| Виробник | Altep |
| Країна виробник | Україна |
| Потужність номінальна | 20 кВт |
| Теплоносій | Вода |
| Тип котла | Тривалого горіння |
| Вид пального | Тверде |
| Коефіцієнт корисної дії | 85 % |
| Об'єм камери згоряння | 83 л |
| Об'єм води в котлі | 72 л |
| Матеріал теплообмінника | Сталь |
| Вага | 245 кг |
| Гарантійний термін | 36 міс |
| Товщина сталі | 6 мм |
- Ціна: 32 300 ₴






